Kaart

Overig agrarisch / landelijk vastgoed te koop in Flevoland: Professor Zuurlaan 31, Biddinghuizen

8256 PD Biddinghuizen
Prijs op aanvraag

Te koop
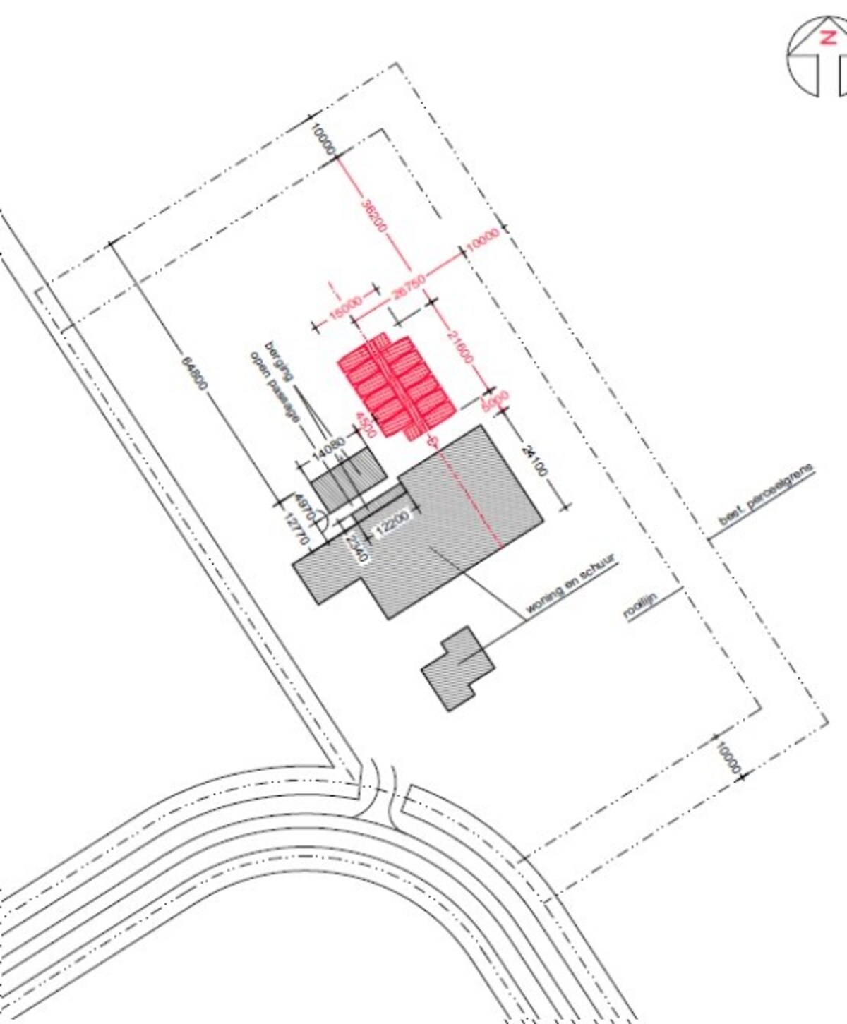
Agrarisch erf met bedrijfswoning, woonunits voor seizoenarbeiders, loods en koeling gelegen in Biddinghuizen op een perceel van 01.43.30 ha.

De locatie
Het betreft een voormalig fruitteeltbedrijf, gelegen in het fruitteeltgebied tussen Biddinghuizen en Dronten. Het object kan worden omschreven als een agrarisch bouwvlak van circa 6.500 m2 met loodsen, koelruimtes, woonunits en omliggende cultuurgrond.

Biddinghuizen is een charmant dorp in de provincie Flevoland, gelegen in de gemeente Dronten. Het dorp staat bekend om zijn rustige en landelijke sfeer, maar heeft ook een strategische ligging dichtbij belangrijke verkeersaders. De omgeving biedt een perfecte balans tussen natuur en stedelijke voorzieningen, wat het een aantrekkelijke plek maakt om te wonen en werken. Met de nabijheid van de stad Lelystad en de A6 biedt Biddinghuizen uitstekende verbindingen naar andere delen van Flevoland en Nederland. Dit maakt het niet alleen een ideale plek voor gezinnen, maar ook voor bedrijven die op zoek zijn naar een centrale locatie met goede bereikbaarheid. Biddinghuizen is ook bekend vanwege de nabijheid van verschillende recreatieve en toeristische attracties, zoals Walibi Holland, het Veluwemeer en diverse natuurgebieden. Dit maakt het een populaire bestemming voor toeristen en een aantrekkelijke locatie voor zakelijke gelegenheden.

De woning
De vrijstaande bedrijfswoning (bungalow) met bouwjaar van circa 1970 heeft een inhoud van ongeveer 325 m3 en een woonoppervlakte van circa 123 m2.
De woning is opgetrokken uit stenen spouwmuren en heeft een plat dak met bitumen gedekt. De kozijnen zijn van zowel hout als staal en grotendeels voorzien van dubbel glas. De vloer is van beton. Een CV-installatie verwarmt de woning.

De indeling van de woning
De entree is voorzien van een hal, meterkast en toilet. Aan de voorzijde van de L-vormige woon- en eetkamer bevindt zich de keuken. De keuken geeft toegang tot de provisiekast en bijkeuken. Via de bijkeuken zijn een douche en vier slaapkamers te bereiken. Het buitenterras biedt de entree voor de aangebouwde berging.

De lage loods
Deze loods met bouwjaar van circa 1970 met latere uitbreiding heeft een oppervlakte van 500 m2. De loods is opgetrokken uit stalen spanten en heeft een gestorte betonvloer. De gevels zijn grotendeels van damwand met isolatie en aftimmering aan de binnenzijde. Een gedeelte is metselwerk. Deze loods heeft een plat dak waarvan het bitumen in 2008 is vervangen. De onderzijde van het dak is met tempex geïsoleerd.
Een overheaddeur geeft toegang tot de circa 4,6 m hoge binnenruimte. De loods is in redelijke tot goede staat en biedt de mogelijkheid tot gebruik voor stalling en opslag. Achterin is een koelinstallatie met in totaal vijf koelcellen (R134A koelvloeistof), waarvan u er twee vanuit deze loods kunt bereiken. Boven in de loods is een kleine kantine gerealiseerd.

De hoge loods
Deze loods, rond 1999 aangebouwd aan de lage loods, heeft een oppervlakte van 400 m2. De loods is opgetrokken uit stalen spanten en heeft een betonvloer: deels gestort, deels betonplaten. De gevels bestaan uit geïsoleerde sandwichpanelen met damwand. Deze loods heeft ook een plat dak met bitumen gedekt en sandwichpanelen aan de binnenzijde.
De loods is voorzien van een overheaddeur. De hoogte van de binnenruimte is 6,9 m. De loods is in redelijke staat en in gebruik als verwerkingsruimte met toegang tot (de overige) drie koelcellen.

De woonunits
Achter op het erf bevinden zich 23 tweepersoons woonunits à circa 18 m2, verdeelt over twee verdiepingen, voor de huisvesting van arbeidsmigranten. Er is één centrale unit voor gezamenlijk gebruik. Twee Cv-ketels, die in een bijgebouw achter de lage loods zijn geïnstalleerd, zorgen voor verwarming en warmwatervoorziening in de woonunits.

Bestemming en vergunning
Het object valt onder het bestemmingsplan Buitengebied Dronten (D4000), vastgesteld op 5 oktober 2016.
Voor deze locatie geldt de enkelbestemming ‘Agrarisch’ en onder andere de functieaanduiding ‘fruitteelt’. De gebiedsaanduiding betreft een ‘luchtvaartverkeerzone’ (denk aan mogelijke toekomstige vluchtbewegingen Lelystad Airport). Voor het omliggende perceel cultuurgrond gelden tevens meerdere dubbelbestemmingen ter bescherming van waarden, zoals ten behoeve van Archeologie 3 en 4.

De gemeente Dronten heeft in 2018 een omgevingsvergunning verleend voor het tijdelijk plaatsen van 23 geprefabriceerde verblijfsunits en één unit voor wassen, centrale verwarming, voorraad en werkplaats voor maximaal 46 seizoenarbeiders op het betreffende erf. De vergunning is verleend voor een periode van 10 jaar tot uiterlijk 17 januari 2028. De units zijn in 2018 gerealiseerd en zijn per heden verhuurd. Uitgangspunt inzake de woonunits is levering vrij van huur en gebruik.

Erf en cultuurgrond
De erfverharding beslaat circa 2.000 m2; de oprit is van klinkers, op het overige erf liggen grotendeels betonplaten.
Zo’n 7.000m2 cultuurgrond ligt om het erf heen en is grotendeels in gebruik voor moerbedden. De grond is geschikt voor diverse akkerbouwmatige teelten, boomteelten of weiland. Uitgangspunt inzake de cultuurgrond is voortgezet gebruik door verkoper.

Overige informatie

De opstallen zijn niet aangesloten op het gemeenteriool. De afvoer van afvalstoffen vindt plaats via Individuele Behandeling van Afvalwater (IBA - septictanks).

Dronten

Aangezien de maatvoering zoals genoemd in deze brochure niet tot stand is gekomen op basis van NEN-meting kunt u hieraan geen rechten ontlenen.

Verkoper behoudt zich het recht voor om op basis van een ontvangen bieding te beslissen met welke partij de onderhandelingen gevoerd zullen worden.

Kenmerken


Overdracht
Prijscode Prijs op aanvraag
Status Beschikbaar

Adresgegevens
Straatnaam Professor Zuurlaan
Huisnummer 31
Postcode 8256 PD
Plaats Biddinghuizen

Bouw
Gebruik object Agrarisch
Object categorie agrarisch ALV overig

Locatie op de kaart

Specialisten in aan- en verkoop van agrarisch onroerend goed

Agriteam is als sinds 1998 dé partner in aan- en verkoop van agrarisch onroerend goed. Kies voor ruime ervaring in begeleiding bij de aan- en verkoop van uw melkveehouderij, akkerbouwbedrijf, landbouwgrond of varkenshouderij!