Kaart

Paardenbedrijf te koop in Limburg: Puttenweg 43, Ysselsteyn

5813 BB Ysselsteyn
Prijs op aanvraag

Te koop aangeboden aan de Puttenweg 43 en 45 een prachtige locatie voor het ontwikkelen van een grootschalige, professionele hippische accommodatie in het buitengebied van Ysselsteyn, Limburg.

Namens de verkoper bieden wij een exclusieve locatie aan, vergund voor de ontwikkeling van een professionele hippische accommodatie.
Gelegen in het mooie buitengebied van het kerkdorp Ysselsteyn, provincie Limburg, beschikt het te verkopen onroerende zaak over een strategisch gunstige ligging.
De locatie is gelegen aan de openbare verharde doorgaande weg en is daarmee tevens goed te bereiken. Daarnaast resulteert dit dat het een perfecte zichtlocatie is.

De te verkopen onroerende zaak ligt op korte afstand van Peelbergen Equestrian Centre in Kronenberg. Op een ca. 500 meter afstand bevindt zich een bosrijke omgeving met tal van officiële uitgezette ruiterpaden opgebouwd met natuurlijke hindernissen. Hier worden dan ook de jaarlijkse Samengestelde Wedstrijden Ysselsteyn gehouden. Bovendien bevindt de locatie zich centraal tussen Amsterdam (Schiphol Airport), het Ruhrgebied (Düsseldorf Airport) en Brussel (Zaventem Airport), waardoor internationale handel en zakelijke connecties binnen handbereik ligt.

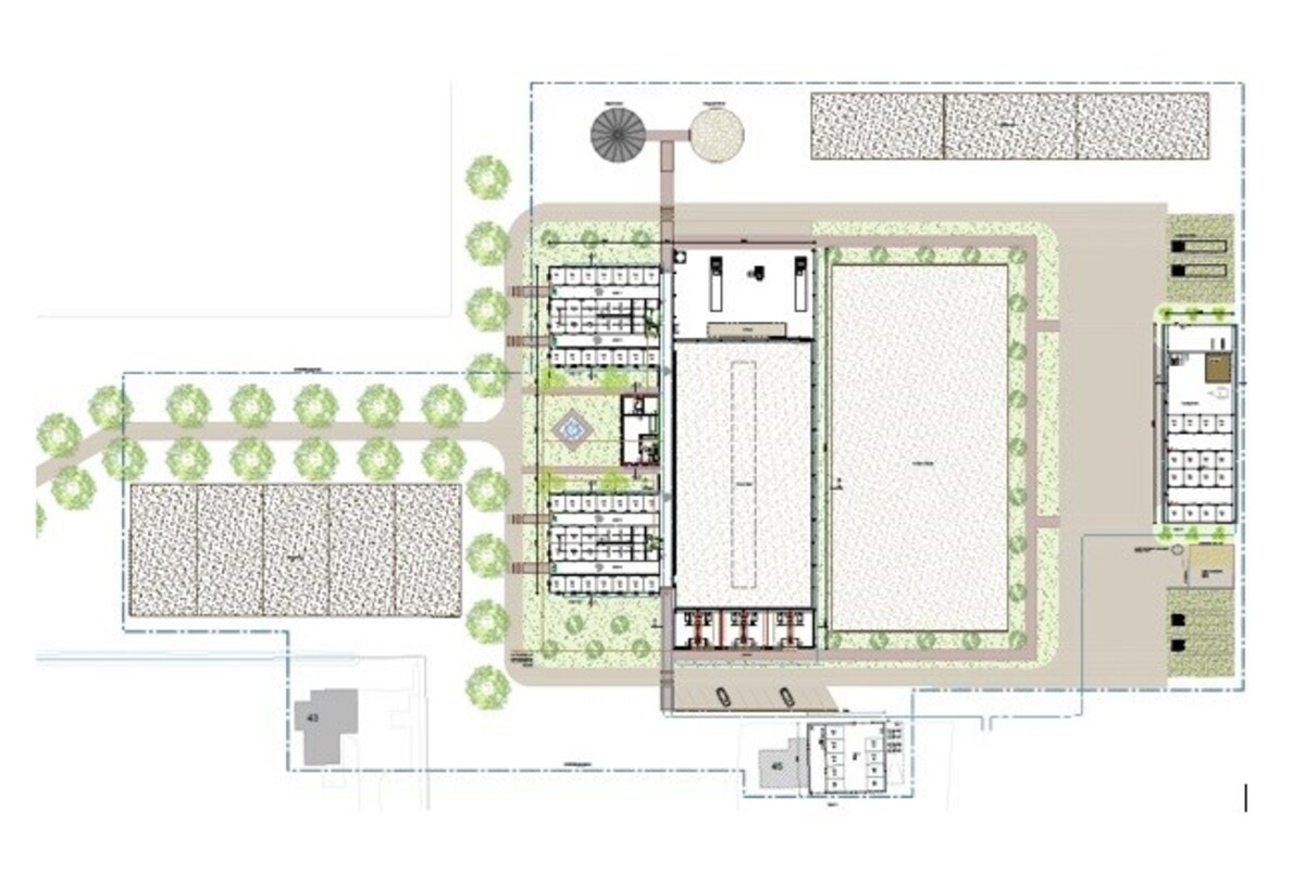
Daarnaast biedt de locatie mogelijkheden voor het realiseren van 6 appartementen als extra huisvestiging waarmee een compleet professioneel hippische accommodatie ontstaat.
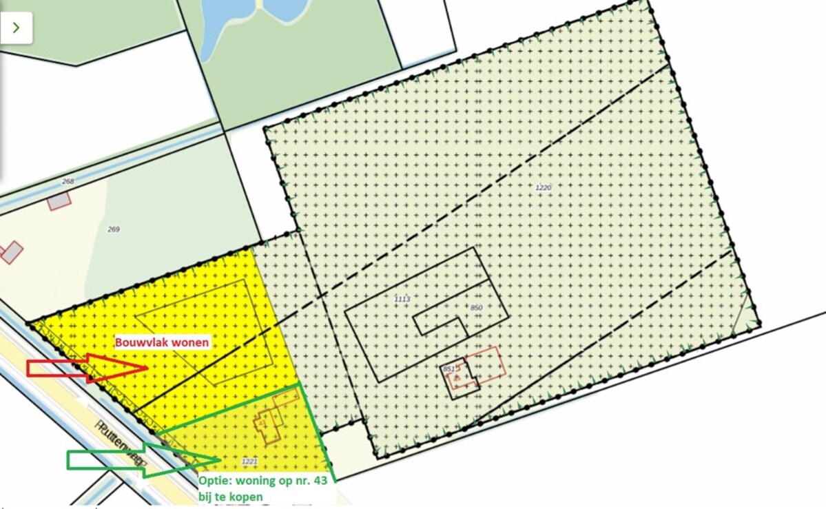
De onroerende zaak wordt aangeboden met een bouwvlak wonen, ideaal voor de realisatie van een nieuwe woning. Dit bouwvlak heeft bestemming wonen. Daarmee betreft het dus geen bedrijfswoning.

Deze woning zal het aanzien worden van het totaal geheel en komt te staan op een perceel van ca. 8.000 m² met een woonbestemming en een bouwvlak van ca. 2.300 m². Op ruimschoots afstand van de openbare weg is dit bouwvlak ingetekend, wat resulteert in een woning met veel aanzien mogelijkheden, in combinatie met veel privacy. Voor de bouw van deze woning dient de bedrijfswoning aan de Puttenweg 45 gesaneerd te worden.

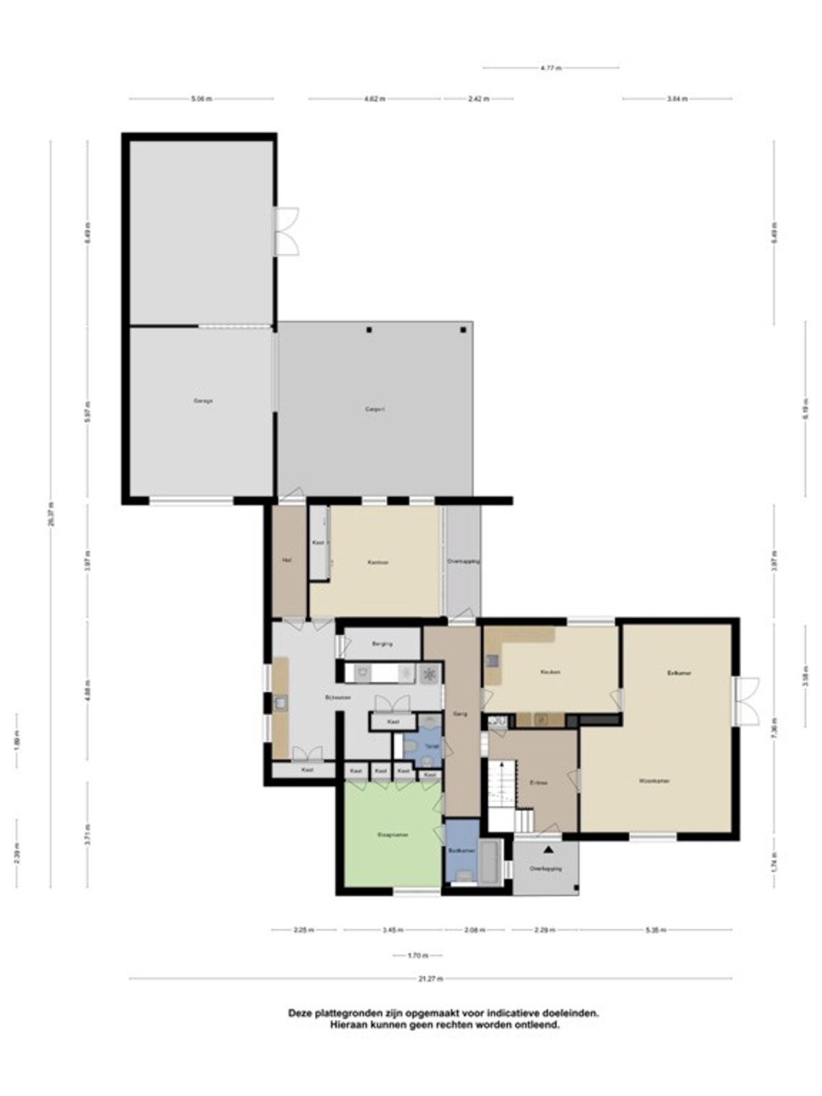
Tevens ligt het in de mogelijkheid om de woning aan de Puttenweg 43 ook mee over te nemen. Ook dit woonhuis heeft inmiddels bestemming wonen. Fiscaal gezien zijn daarmee de te ontwikkelen woning op locatie en de woning aan Puttenweg 43 een waardevast component in het totaal plaatje. Een belangrijk voordeel is dat beide woningen permanent bewoond mogen worden door personen zonder directe binding aan de onderneming, aangezien het hier niet om bedrijfswoningen gaat.

De volgende bestemming zit op het woongedeelte; Buitengebied Venray 2010, herziening Stoppers- en Saneringsregeling (ronde 2), vastgesteld 22-06-2023 geheel onherroepelijk in werking.
Bestemmingsvlakken Waarde – Archeologie 2 / Wonen, gebiedsaanduiding Reconstructiewetzone – verwevingsgebied / Luchtvaartverkeerzone.

Achter de woning ligt een ruim agrarisch bouwvlak van ca. 4,0 ha, ideaal voor de ontwikkeling van een professionele hippische accommodatie. Als voorbeeld is er een schets opgesteld, echter het is voor elke partij vrij, om het geheel naar eigen wens in te vullen. Uiteraard binnen de kaders van het huidige geldende bestemmingsplan. Het bouwvlak valt onder het bestemmingsplan; Buitengebied Venray 2010, herziening Stoppers- en Saneringsregeling (ronde 2), vastgesteld 22-06-2023 geheel onherroepelijk in werking. Bestemmingsvlakken Waarde – Archeologie 2 / Agrarisch, functie aanduiding Agrarisch bedrijf, gebiedsaanduiding Reconstructiewetzone – verwevingsgebied / Luchtvaartverkeerzone.
Bekijk voor de juiste informatie https://omgevingswet.overheid.nl/regels-op-dekaart/zoeken/locatie?regelsandere=regels of laat u bijstaan door een bureau ruimtelijk ordening.

Voor de realisatie en instandhouding van deze professionele hippische accommodatie beschikt de locatie over NH3. Met betrekking tot de Natura-2000 gebieden, rust er op basis van het intrekkingsverzoek van de vorige geldende vergunning, nog een 662.40 kg NH3 op deze locatie.Daarmee is het mogelijk om ca. 50 volwassen paarden en ca. 80 paarden in opfok te realiseren.

In totaal kan er 08.32.80 ha gekocht worden. Alles ligt in één nette kavel bij elkaar. De volgende percelen maken hier onderdeel van;
- Venray, sectie M, nummer 850, groot 000.7.65 ha, wonen + agrarisch bouwvlak,
- Venray, sectie M, nummer 851, groot 00.02.60 ha, woning met ondergrond Puttenweg 45,
- Venray, sectie M, nummer 1113, groot 00.24.40 ha, wonen + agrarisch bouwvlak,
- Venray, sectie M, nummer 1220, groot 07.63.55 ha, wonen + agrarisch bouwvlak,
- Venray, sectie M, nummer 1221, groot 00.34.60 ha, woning met ondergrond Puttenweg 43,
- Tezamen groot 08.32.80 ha.

Kenmerken


Overdracht
Prijscode Prijs op aanvraag
Status Beschikbaar

Adresgegevens
Straatnaam Puttenweg
Huisnummer 43
Postcode 5813 BB
Plaats Ysselsteyn

Bouw
Gebruik object Agrarisch
Object categorie agrarisch Paardenbedrijf

Locatie op de kaart

Specialisten in aan- en verkoop van agrarisch onroerend goed

Agriteam is als sinds 1998 dé partner in aan- en verkoop van agrarisch onroerend goed. Kies voor ruime ervaring in begeleiding bij de aan- en verkoop van uw melkveehouderij, akkerbouwbedrijf, landbouwgrond of varkenshouderij!