Kaart
Verkocht

Overig agrarisch / landelijk vastgoed te koop in Limburg: Vrij 5, Siebengewald

5853 EJ Siebengewald
Prijs op aanvraag

Landelijk en vrij gelegen, woonboerderij (765 m³) met een geitenstal, een stal voor opslag, een loods, een kapschuur, een varkens/kippenhok en tuinkas. Op een perceel van 2.25.80 ha. Op dit moment is het object in gebruik als geitenhouderij met kaasmakerij en huisverkoop. Maar ook vele mogelijkheden biedt voor zelfvoorzienend wonen c.q. paardenhuisvesting etcetera. De bestemming is agrarisch. Het bouwvlak is ongeveer 6.800 m² groot. Een klein gedeelte heeft dubbelbestemming Archeologie 4. Daarnaast beschikt de locatie over ongeveer 1.21.80 hectare grasland.  

Omgeving

Het object is gelegen in het buitengebied van Siebengewald, een dorp in het noorden van Limburg aan de grens met de Duitse deelstaat Noordrijn-Westfalen, ten oosten van Nationaal Park Maasduinen. Het maakt deel uit van de gemeente Bergen en telt 2.080 inwoners.  De plaats ligt hemelsbreed 27 kilometer ten zuidoosten van Nijmegen, 16 kilometer ten noordoosten van Venray en 5 kilometer ten zuidwesten van Goch. Siebengewald ligt dicht bij de A77 en A73. Via deze wegen zijn Boxmeer, Venray en Nijmegen vlot te bereiken.

Indeling:

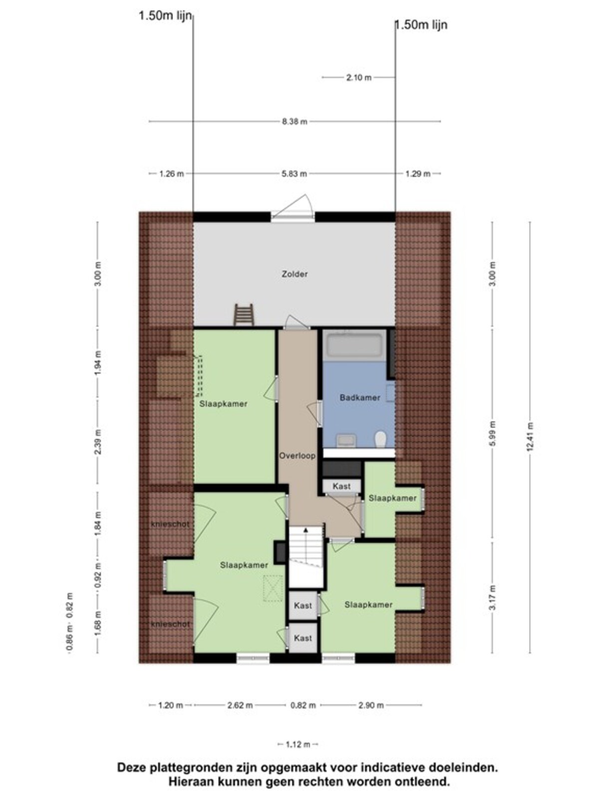
Het woonhuis beschikt over een woonoppervlakte van 160 m² (Gebruiksoppervlakte wonen) en 46 m² (Gebruiksoppervlakte overige inpandige ruimte). Het object betreft een agrarische bedrijfswoning.

Begane grond: achter entree voorzien van een wasmachine en droger aansluiting en een (verouderd)badkamer en toilet, kantoorruimte, cv ruimte, keuken, kelder, woonkamer, hal met trapopgang 1e verdieping en slaapkamer.

1e verdieping: overloop, 3 slaapkamers voorzien van inbouwkasten, opslagkamer, royale badkamer met 2e toilet, wastafel en een ligbad met douche, toegangsdeur tot (hooi)zolder.

Alle ruimtes zijn voorzien van CV.

De gebouwen:

Loods: 22 x 11,5 meter bouwjaar 1997 (253 m²) in spouw uitgevoerd. Voorzien van een gevlinderde vloer, stalen spanten, geïsoleerde binnenwanden, geïsoleerd dak van sandwichpanelen voorzien van 78 zonnepanelen op het dak (2021) incl. 2 overheaddeuren.  Ingang winkelruimte inclusief toilet, keukenblok en een grondwaterbron. Hygiënesluis, kaasmakerij en een kaasopslagruimte incl. koeling. Er bevind zich een zolder op de kaasmakerij en kaasopslag voorzien van houten vloer. Circa 121m² is in gebruik als opslagruimte.

Open veldschuur: De open veldschuur is van 1989 (144 m²) en heeft een afmeting van 12 meter x 12 meter. De schuur heeft aan drie zijden een houten afscheiding en is uitgevoerd met stalen spanten. In 2022 zijn de dakplaten vervangen door asbestvrije golfplaten. Er liggen 30 zonnepanelen op het dak (2023).

Stal: De 1e stal (1965) dient als opslag voor voer en diverse materialen en heeft een oppervlakte van 663 m² (51 meter x 13 meter). De muren zijn van hout met een betonnen voet. De spanten zijn van hout en er liggen asbest golfplaten op het dak.

Geitenstal: Deze stal (1972) dient als geitenhuisvesting. De schuur is 80 meter x 23 meter en heeft een oppervlakte van 1.840 m². De spanten zijn van staal.  De stal is van binnen uit geïsoleerd, met gasbeton en er liggen asbest golfplaten op het dak.

Varkens/kippenhok: Deze stal is 5 x 12 meter. Opgebouwd uit lichte betonelementen met dakpannen en een betonvloer erin. Water en elektra aanwezig.

Kas: er is een kas van 4,5 meter x 5 meter, met dubbele beglazing, voorzien van wateraansluiting en elektriciteit.

Erfverharding: Er ligt ongeveer 400 m² erfverharding, deels betonklinkers en deels gestort beton. Naast het bouwvlak van 6.800 m² is er een functieaanduiding ‘erf’ wat ongeveer  (in totaliteit) 10.350 m² omvat. Daarnaast is er ongeveer 1.21.80 hectare degelijk omheind landbouwgrond incl. grondwaterbron, wat als grasland dienst doet en beweidt kan worden.

Vergunningen

Er is een ‘Omgevingsvergunning beperkte milieutoets’ van 13 maart 2018 waarin is opgenomen dat er 200 geiten en 120 opfokgeiten worden gehouden.

Er is een NB-wet vergunning van 4 juni 2018 dat er óf 38.300 vleeskuikens óf 500 melkgeiten, 346 opfokgeiten en 10 vleesvarkens gehouden mogen worden.

Kenmerken


Overdracht
Prijscode Prijs op aanvraag
Status Verkocht

Adresgegevens
Straatnaam Vrij
Huisnummer 5
Postcode 5853 EJ
Plaats Siebengewald

Bouw
Gebruik object Agrarisch
Object categorie agrarisch ALV overig

Locatie op de kaart

Specialisten in aan- en verkoop van agrarisch onroerend goed

Agriteam is als sinds 1998 dé partner in aan- en verkoop van agrarisch onroerend goed. Kies voor ruime ervaring in begeleiding bij de aan- en verkoop van uw melkveehouderij, akkerbouwbedrijf, landbouwgrond of varkenshouderij!