Kaart

Woning te koop in Limburg: Breevennenweg 5, Leunen

5809 EK Leunen
Prijs op aanvraag

Een unieke kans om wonen en ondernemen te combineren op een prachtige locatie in het buitengebied van Leunen (Noord-Limburg).

Namens verkoper bieden wij deze uitstekend onderhouden bedrijfslocatie aan. Het betreft een ruim opgezet en verzorgd geheel met meerdere degelijke bedrijfsopstallen en een royale bedrijfswoning, gelegen op een perceel van circa 1,89 hectare.

De locatie beschikt over de bestemming “Bedrijf” met de functieaanduidingen:
• specifieke vorm van bedrijf – landbouw verwante bedrijven
• specifieke vorm van bedrijf – zorg (met overnachting)
• bedrijfswoning

Binnen de zorgbestemming is het mogelijk zorgaccommodaties met overnachting te realiseren met een capaciteit tot circa 32 slaapplaatsen. Daarnaast biedt het bestemmingsplan ruimte voor het realiseren van zes zorgverblijven / zorgunits en een aanvullend bijgebouw.

Deze bestemming is vastgelegd in het bestemmingsplan Gemeente Venray, vastgesteld op 26-09-2023 en volledig onherroepelijk. Bron: Omgevingsloket. Wij adviseren geïnteresseerden zich desgewenst te laten begeleiden door een professioneel bureau voor ruimtelijke ordening. De verkopend makelaar kan u hierbij desgewenst in contact brengen met een gespecialiseerd bureau.


Ligging
De locatie ligt aan een rustige, doorgaande verharde weg in het landelijke buitengebied van Leunen. Dankzij de gunstige ligging zijn de snelwegen A73 en A67 snel en eenvoudig bereikbaar.
In de directe omgeving bevinden zich weinig directe buren, wat zorgt voor ruimte, rust en privacy.


Perceel en woning
Het geheel is gelegen op een perceel van circa 1,89 hectare, waarvan circa 1,50 hectare bouwvlak met bestemming “bedrijf”.
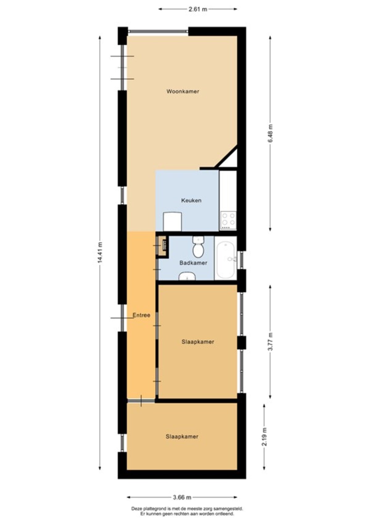
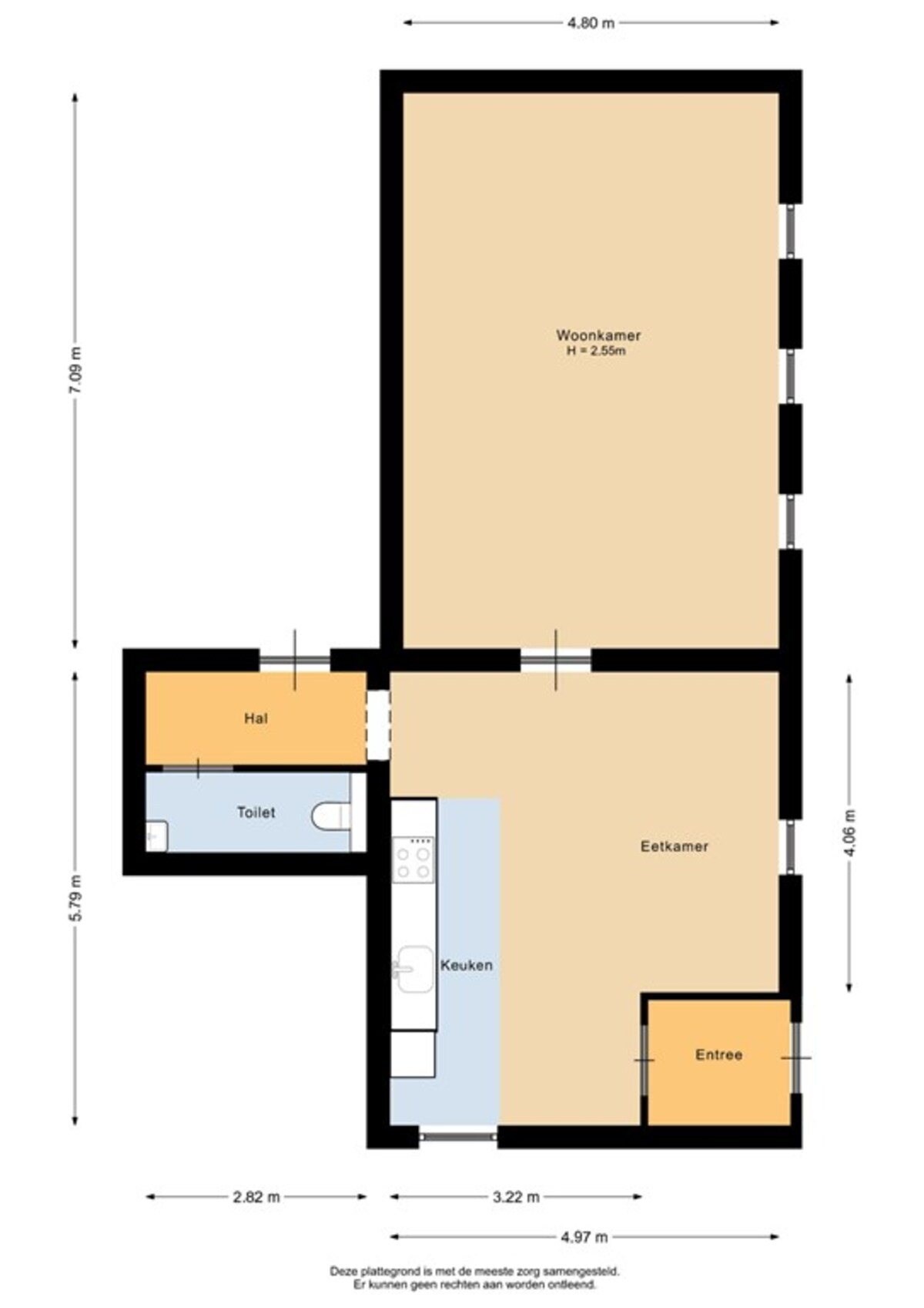
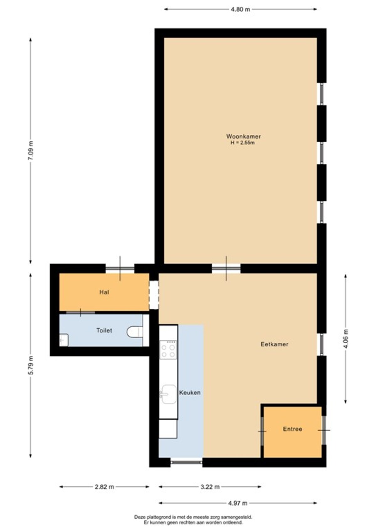
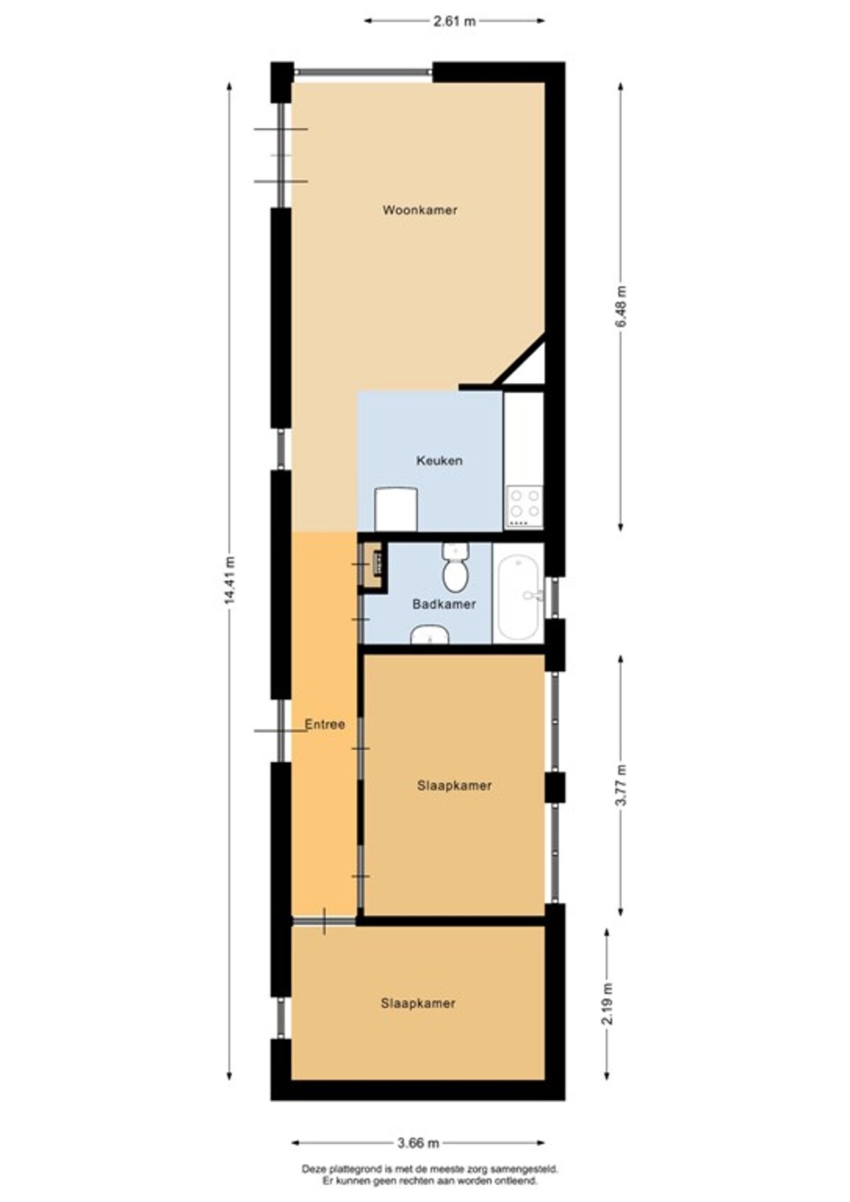
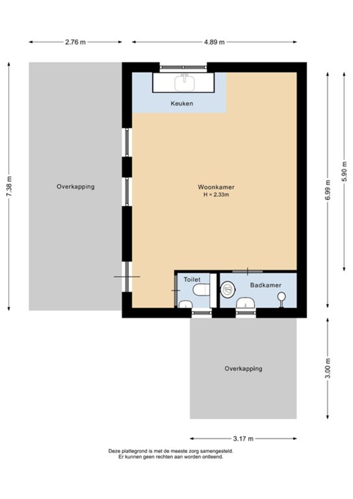
Op het bouwvlak bevindt zich een ruime bedrijfswoning, gebouwd rond 1993. De woning kenmerkt zich door een solide bouwkwaliteit, een praktische indeling en een royale privétuin. Hierdoor biedt de woning een prettige woonomgeving waar u na een drukke werkdag volledig tot rust kunt komen.
Rondom de woning bevinden zich enkele bijgebouwen en bestaat er ruimte voor uitbreiding, waaronder het realiseren van een extra bijgebouw en 6 verblijven ten behoeve van de zorgfunctie.

Bedrijfsopstallen
Op het perceel bevinden zich twee bedrijfsloodsen:

Loods ca. 555 m² – bouwjaar circa 1990
Deze loods valt binnen de zorgbestemming en biedt daarmee directe mogelijkheden voor gebruik ten behoeve van zorgactiviteiten, dagbesteding of ondersteunende functies. De loods is deels ingericht voor onderhouds- en werkplaatsactiviteiten en beschikt over kantoorruimte en sanitaire voorzieningen.

Loods ca. 1.000 m² – bouwjaar circa 2023
Deze moderne en degelijk gebouwde loods valt binnen de aanduiding “landbouw verwante bedrijven” en verkeert in uitstekende staat. Het gebouw is geïsoleerd en geschikt voor uiteenlopende bedrijfsactiviteiten.

Beide loodsen verkeren in bovengemiddeld goede staat en zijn degelijk afgewerkt. De gebouwen zijn geïsoleerd en voorzien van onder andere:
• kantoorruimtes
• sanitaire voorzieningen
• diverse functionele werkruimtes
De kleinere loods is gedeeltelijk ingericht voor onderhouds- en werkplaatsactiviteiten.

Erf en terrein
Via een secundaire inrit bereikt u het ruime, verharde erf dat centraal is gelegen tussen de loodsen en de bedrijfswoning. Dit erf biedt volop ruimte voor manoeuvreren, opslag en logistiek.

Het terrein beschikt daarnaast over:
• een weegbrug
• volledig omheind perceel
• poort bij de entree

Overige kenmerken
• Asbestvrij
• Geen ondergrondse tanks aanwezig
• Ruim opgezet perceel met veel gebruiksmogelijkheden
• Combinatie van wonen en ondernemen op één locatie


Samengevat
Een bijzonder compleet object waar wonen, werken en uitbreidingsmogelijkheden samenkomen op een rustige en goed bereikbare locatie in het buitengebied van Leunen.
Wij nodigen u van harte uit om deze locatie zelf te komen ervaren tijdens een vrijblijvende bezichtiging. Wij nemen graag uitgebreid de tijd om u rond te leiden.

Prijs op aanvraag
Aanvaarding: in overleg
Koopsomsplitsing voorbehouden aan verkoper, in overleg met koper. Voor meer informatie kunt u contact opnemen met de verkopend makelaar.

Kenmerken


Overdracht
Prijscode Prijs op aanvraag
Status Beschikbaar

Adresgegevens
Straatnaam Breevennenweg
Huisnummer 5
Postcode 5809 EK
Plaats Leunen

Bouw
Gebruik object Agrarisch
Object categorie agrarisch Woning

Locatie op de kaart

Specialisten in aan- en verkoop van agrarisch onroerend goed

Agriteam is als sinds 1998 dé partner in aan- en verkoop van agrarisch onroerend goed. Kies voor ruime ervaring in begeleiding bij de aan- en verkoop van uw melkveehouderij, akkerbouwbedrijf, landbouwgrond of varkenshouderij!