Kaart

Akkerbouwbedrijf te koop in Gelderland: Maasdijk 132, Aalst

5308 JG Aalst
Prijs op aanvraag

Prachtig gelegen bouwkavel in Aalst voor het ontwikkelen van een grondgebonden agrarisch bedrijf of wijziging naar woonbestemming.

De locatie

De bouwkavel ligt in het buitengebied ten noorden van het dorp Aalst in de gemeente Zaltbommel. Met tien autominuten bereikt u de A2 evenals de stadse voorzieningen van Zaltbommel. Utrecht en ’s-Hertogenbosch zijn via treinstation Zaltbommel eenvoudig te bereizen.

Aalst is een dorp in het westelijk deel van de Bommelerwaard en staat in de regio bekend als een dorp met veel recreatiemogelijkheden met name op het gebied van watersport. Al fietsend over de Maasdijk kijkt u uit op recreatiegebied De Neswaarden. Dit gebied is een aftakking van de Afgedamde Maas en grenst direct aan recreatieplas Het Esmeer en de jachthaven. Het is een schitterende plek om te vertoeven met een strand, ligweide, sportveldjes en een grote, recent aangelegde speeltuin. Dit alles biedt u volop mogelijkheden voor watergebonden recreatie.
In het dorp zelf zijn twee basisscholen en voldoende winkels aanwezig om in uw dagelijkse levensbehoeften te voorzien.

De bouwkavel

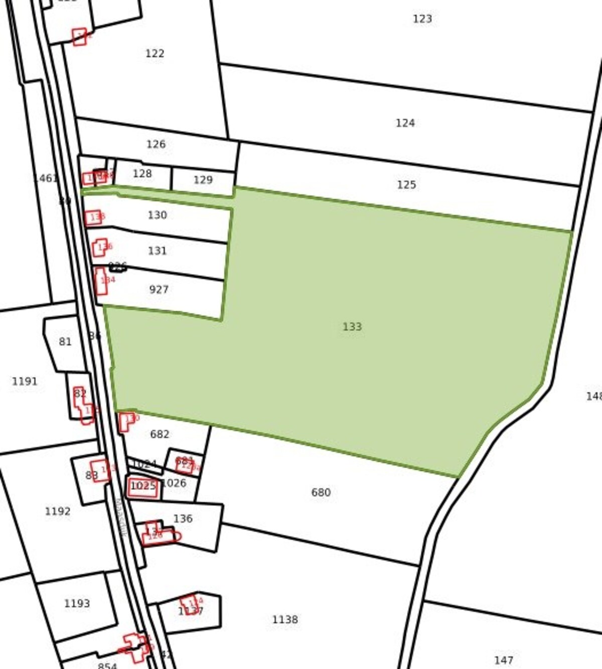
De kavel valt onder het bestemmingsplan ‘Buitengebied Zaltbommel’. Dit bestemmingsplan is onherroepelijk en vastgesteld door de gemeente Zaltbommel op 17 september 2014. In dit plan is de kavel aangewezen met de enkelbestemming 'Agrarisch met waarden' en de dubbelbestemming 'Waarde - Archeologie 3'. Dit betekent, dat u op de kavel onder andere een grondgebonden agrarisch bedrijf kunt uitoefenen, waarbij u één bedrijfswoning mag realiseren. De kavel heeft een oppervlakte van 10.000 m2 ; het agrarisch bouwblok bedraagt circa 9.100 m2 (zie rood kader op de foto). U heeft de mogelijkheid in overleg met verkoper de oppervlakte van het aan te kopen perceel naar eigen wens aan te passen.

Wilt u op deze prachtlocatie liever een woonbestemming verkrijgen? De gemeente Zaltbommel heeft het voornemen mee te werken aan een bestemmingswijziging van ‘Agrarisch’ naar ‘Wonen’. Voor de bouw en gebruiksregels sluit de gemeente aan bij de regels zoals die van toepassing zijn op de bestemming Wonen in de nabije omgeving. Dit betekent, dat u een woning bouwt met een inhoud van maximaal 750 m³, een goothoogte van 6,5 meter en een bouwhoogte van 11,0 meter. En bent u een paardenliefhebber? Het aanleggen van een paardenrijbak met een maximale oppervlakte van 1.200 m2 is mogelijk.
De kavel heeft een oppervlakte van 2.500 m2 ; een indicatie van de toekomstige ligging ziet u op de foto groen gearceerd. Ook hier geldt: de ligging en de oppervlakte van de kavel kunt u in overleg met verkoper en gemeente aanpassen. Tevens biedt verkoper de mogelijkheid om de bestemmingswijziging voor u te regelen.

Heeft u interesse om op deze locatie uw droom te realiseren? Vraag onze makelaar gerust naar verdere informatie over dit project.

Kenmerken


Overdracht
Prijscode Prijs op aanvraag
Status Beschikbaar

Adresgegevens
Straatnaam Maasdijk
Huisnummer 132
Postcode 5308 JG
Plaats Aalst

Bouw
Gebruik object Agrarisch
Object categorie agrarisch Akkerbouwbedrijf

Locatie op de kaart

Specialisten in aan- en verkoop van boerderijen

Agriteam is als sinds 1998 dé partner in aan- en verkoop van boerderijen. Kies voor ruime ervaring in begeleiding bij de aan- en verkoop! Bent u op zoek naar een landelijke woning of woonboerderij? Bekijk dan ons aanbod op landelijk-wonen.nl!