Kaart

Woning te koop in Overijssel: Lemelerveldseweg 36, Heino

8141 PW Heino
Vraagprijs € 750.000

LANDELIJK WONEN IN ZEER RUIME WONING
MET AANGEBOUWDE GARAGE

Bent u op zoek naar een royale vrijstaande woning in het buitengebied, dan is dit uw kans. Gelegen op een kavel van liefst ca. 3.200 m². Dit is een prachtige plek om te wonen; ideaal voor ouders/kinderen, paardenliefhebbers, hobbyvee of kantoor of praktijk aan huis.
Centraal gelegen in buitengebied van Heino, op korte afstand van Zwolle, nabij verbindingswegen.

KENMERKEN:
- Riant uitzicht over de landerijen;
- Slaapkamers op de begane grond, voor meerdere doelgroepen;
-Inhoud ca. 1.132 m3 en woonoppervlakte ca. 280 m2;
-Royale kavel van ca. 3.200 m2;
- Energielabel C;
- Goed onderhouden;
- Zwolle en Raalte op korte afstand;
- Nabij verbindingswegen.

Nieuwsgierig geworden, we ontvangen u graag voor een bezichtiging!


Woning
Deze vrijstaande woning is gebouwd in 1980 met een inhoud van 1.132 m³ (incl. garage). Het geheel is opgetrokken uit spouwmetselwerk en is gedekt met pannen. De woning is voorzien van dak-, gevel- en deels vloerisolatie, dubbele beglazing (m.u.v. zolder- en doucheraam). De woning wordt verwarmd middels centrale verwarming en heeft vloerverwarming in keuken, woonkamer, douche en toilet. De kap is beschoten met isolatieplaten. De begane grond- en de verdiepingsvloer zijn van beton. Het object is aangesloten op de nutsvoorzieningen gas, water, elektra, riolering en glasvezel. Op de kap van de woning bevinden zich 10 zonnepanelen (2022) van 400 KW.
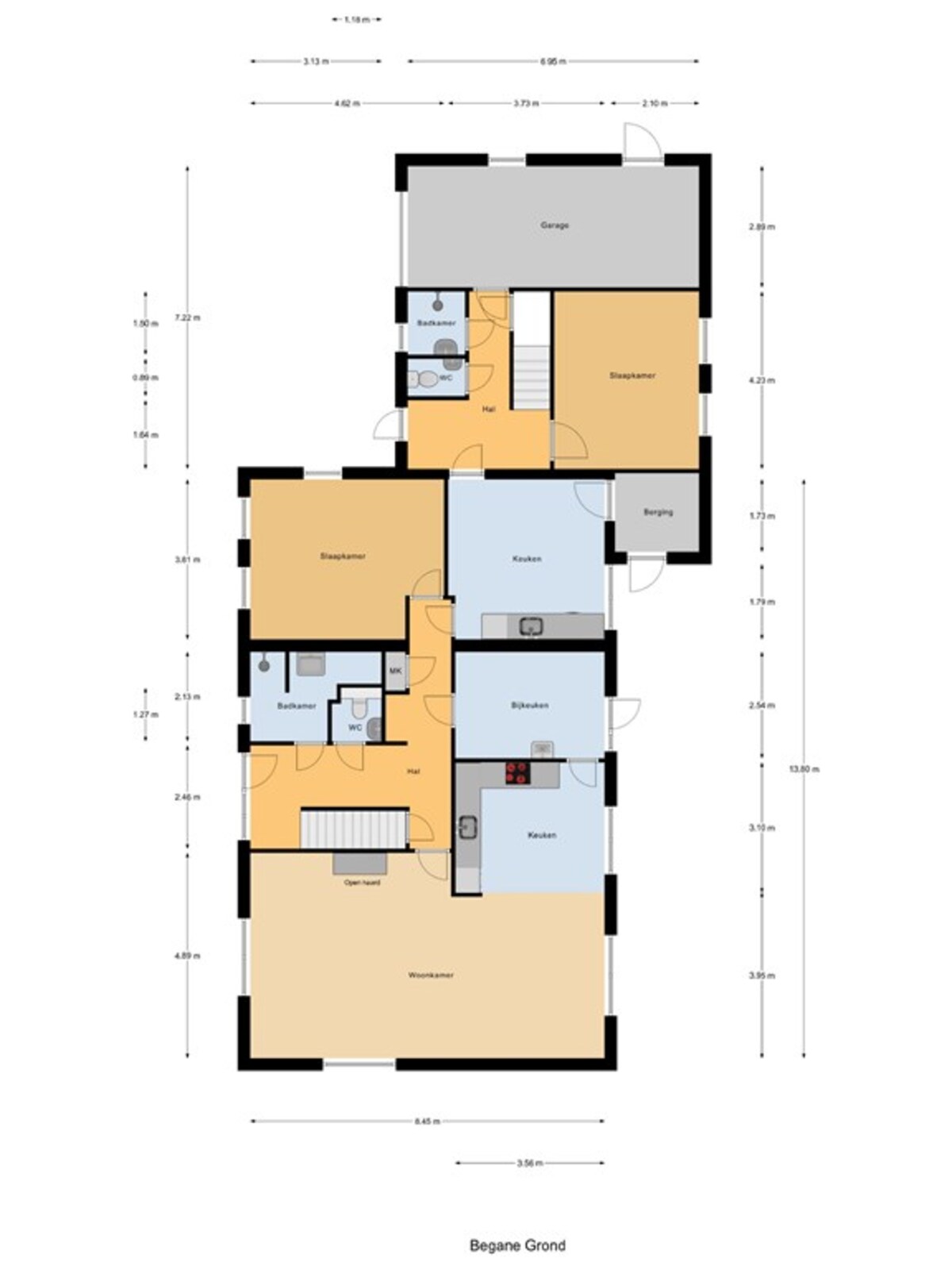
De indeling is als volgt:

Begane grond:
hal, trapopgang, meterkast, toilet, woonkamer met open keuken, bijkeuken, kelder, twee slaapkamers, badkamer met vaste wastafel en douche, berging, hal, toilet, douche, trapopgang, kelder, garage.

Eerste verdieping:
-overloop met vier slaapkamers, toilet met vaste wastafel en mogelijkheid tot douche, cv ruimte en zolderruimte.
-zolderruimte extra zolderkamer met vaste wastafel.

Tweede verdieping:
vliering (onbeloopbaar) bereikbaar middels een losse trap.

Kenmerken


Overdracht
Vraagprijs € 750.000,00
Prijscode Vraagprijs
Status Beschikbaar

Adresgegevens
Straatnaam Lemelerveldseweg
Huisnummer 36
Postcode 8141 PW
Plaats Heino

Bouw
Gebruik object Agrarisch
Object categorie agrarisch Woning

Locatie op de kaart

Specialisten in aan- en verkoop van boerderijen

Agriteam is als sinds 1998 dé partner in aan- en verkoop van boerderijen. Kies voor ruime ervaring in begeleiding bij de aan- en verkoop! Bent u op zoek naar een landelijke woning of woonboerderij? Bekijk dan ons aanbod op landelijk-wonen.nl!