Kaart
Verkocht

Losse grond te koop in Noord-Brabant: Eerste Stichting, Oploo

5841 DA Oploo
Prijs op aanvraag

Te koop: 2.48.15 hectare cultuurgrond te Oploo, gelegen aan de Eerste Stichting.

Kadastrale informatie
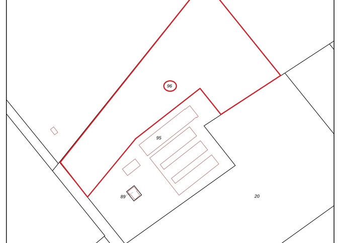
Het perceel is kadastraal bekend onder nummer:
gemeente Oploo, sectie P, nummer 96

Bestemmingsplan
Het perceel is gelegen in het bestemmingsplan “buitengebied gemeente Sint Anthonis 2013 en heeft de agrarische bestemming met grotendeels waarde archeologie.
Bron: Omgevingsloket

Algemeen
Het perceel betreft akkerbouwgrond ter grootte van 2.48.15 hectare.
De grondsoort betreft zandgrond en wordt gebruikt voor de teelt van diverse akkerbouwgewassen.
Het perceel is goed ontsloten naar de openbare weg.

Kenmerken


Overdracht
Status Verkocht

Adresgegevens
Straatnaam Eerste Stichting
Postcode 5841 DA
Plaats Oploo

Bouw
Gebruik object Agrarisch
Object categorie agrarisch Losse grond

Locatie op de kaart

Specialisten in aan- en verkoop van boerderijen in Noord-Brabant

Agriteam makelaars en taxateurs is een landelijk opererend samenwerkingsverband van zelfstandige, regionale makelaars. We werken samen op landelijk niveau, maar zijn sterk geworteld in onze eigen regio's.

In de regio Noord-Brabant zijn er verschillende betrouwbare dienstverleners van Agriteam waarop u kunt rekenen. Allereerst hebben we AgriTeam Zuid-West Brabant, een ervaren team van makelaars en taxateurs gevestigd in het Brabantse Etten-Leur. Daarnaast is er Agriteam West-Brabant, waar Makelaar en taxateur Rick Westerlaken werkzaam is en gevestigd is in Woudrichem. Tot slot hebben we Agriteam Peel-, Maas- en Rivierengebied, dat actief is in Noord-Brabant, Noord-Limburg en het zuiden van Gelderland. Elk van deze kantoren biedt uitgebreide expertise en professionele diensten op het gebied van agrarisch onroerend goed in hun respectievelijke regio's.